
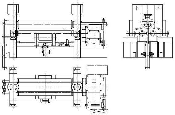
上輥萬能式卷板機作為金屬板材彎曲成型的核心設備,其結構設計巧妙,以上輥為核心,配合可靈活調節的下輥,通過液壓或機械驅動,結合高精度控制系統,能夠依據板材的不同材質、厚度和曲率需求,精準調整輥軸位置、壓力及旋轉速度。這種設備不僅支持圓形、弧形、錐形等多樣化截面的卷制,適配低碳鋼、不銹鋼等多種材質,還配備數控系統與安全防護裝置,實現參數預設、自動化操作與安全保障。
憑借卓越的性能,上輥萬能式卷板機在眾多領域發揮著重要作用。在工業制造中,它可用于壓力容器筒體、風機外殼等部件的卷制;在工程建設領域,能滿足大口徑管道、鋼結構支架的加工需求;在船舶、航空航天行業,也勝任船體外殼、飛機弧形零部件的復雜曲面成型。其高效、精準的成型能力,使其成為工業制造中不可或缺的重要裝備。

1、鼓形上輥,下輥下部托輥配合調節,提高高精度的制品直線度
采用鼓形上輥,上輥鼓形預置量一般為輥子均布載荷的 70%來預置;較小直徑的下輥,下輥的下部有上下可
調節的托輥支撐。根據卷制制品的負荷,調節下輥下部的托輥,大大提高了制品的直線度。
? ? ?
A、 卷制厚板情形


卷制厚的板材,下輥下部的托輥向上調節;制品形狀:“荷包口”t 值很小,制品直線度高。
B、卷制薄板情形


卷制薄的板材,下輥下部的托輥向下調節;制品形狀:不可能出現“束腰狀”,制品直線度高。
2、后方彎曲卷制,提高高精度制品的圓度
上輥萬能式卷板機采用后方彎曲(板材送進的方向與上輥移動的方向相反),上輥一邊壓下,下輥一邊旋轉, 連續彎曲,板材的端部預彎直接加壓預彎,避免了前方彎曲后角的產生,而且可以控制剩余直邊的長度、形狀。
一般三輥非對稱式采用前方彎曲,先對板材的兩端部預彎,然后對稱卷制成形,需要熟練的操作員工,制品出現后角,且剩余直邊的形狀難以控制。
| 類型 | A.上輥萬能式卷板機 | B、三輥非對稱式
(上輥水平調整式、下輥水平調整式、弧形下調式、四輥卷板機等) |
| 預彎方式 | ![]() |
![]() |
| 上輥一邊壓下,下輥一邊旋轉 | 先對板材的端部進行預彎,然后對稱進行卷制 | |
![]() |
![]() |
|
| 板材的端部,采用直接加壓式預彎 | 下輥正反轉,先預彎,后卷制 | |
| 制品形狀
|
![]() |
![]() |
| 制品不存在后角,剩余直邊的端部,控制在標準圓上,制品的圓度高。 | 制品存在后角,剩余直邊的端部控制在標準圓上比較困難,制品的圓度不高。 |
如果您需要購買卷板機,或者對卷板機設備有任何疑問,歡迎咨詢上海鞍提仕,我們會為你提供專業的建議!請聯系contact@antsmachine.com










獲取所需的產品報價
給出詳細的要求有助于獲得更匹配的定制解決方案。 謝謝您的耐心。 我們將在 1 小時內回復您,請注意查收您的電子郵件。